площадью 20,60 м2, по цене 1872000 по адресу Лесной проспект - 20к5 литера Я

Цена 1 872 000 р.
Район Выборгский
Адрес Лесной проспект, 20к5 литера Я
Площадь помещения 20,6 м2
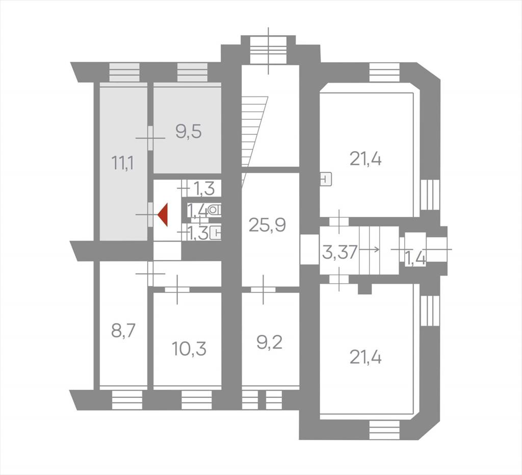
Код лота: 62C46C9-4001-7149-1. Реализуется на торгах. Продается офисное помещение в пешей доступности ст. м "Выборгская". Адрес: г. Санкт-Петербург, Лесной пр. , д. 20, корп. 5, пом. 8-Н. Общая площадь: 20,6 кв.м. Кадастровый номер: 78: 36: 005009: 5073 Этаж: цокольный (всего 3 этажа) . Вход: 1 общий с торца здания Окна: 2 окна во двор. Год постройки дома: 1905 г. Здание относится к ОКН «Жилые дома для служащих завода Л. Нобеля (комплекс с территорией) ". Помещение в собственности Санкт-Петербурга. Состояние отделки: нормальное. Инженерные коммуникации: электроснабжение, отопление. Мокрая точка отсутствует. Санузел реализуется отдельным лотом. Транспортная доступность: На расстоянии 800 м находится станция метро «Выборгская» (10 минут ходьбы) и 1,7 км Финляндский вокзал. В непосредственной близости также расположены остановки общественного транспорта. Помещение возможно использовать в качестве офисного помещения. В цокольном этаже реализуются еще 5 лотов от 1,3 кв. м до 21,4 кв. м, объединенные общим коридором. https: //catalog. lot-online. ru/index. php?dispatch=products. view&product_id=1007623
Объявление № 23189846
Дата подачи:
26 августа 2025 г. 9:14
Дата обновления:
26 августа 2025 г. 4:00
Просмотров 25 Хотите продать быстрее?

Продавец
Кириллова Анастасия
Показать номер телефона
Пожаловаться
Комментарии:
Добавить